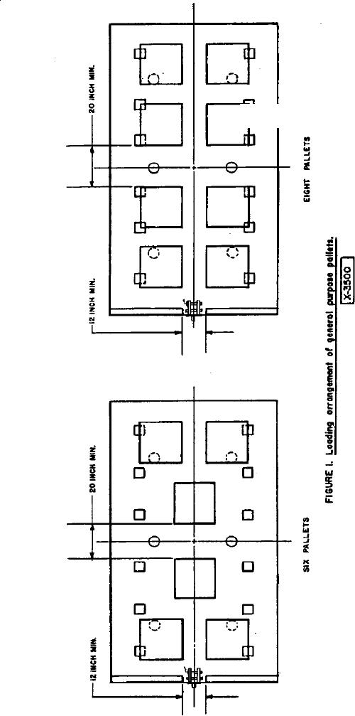
MIL-P-52910 Pallet, Cargo, For Ribbon Bridge TransporterThis specification covers cargo pallets capable of functioning with the ribbon bridge transporter.